Szukasz nowego, funkcjonalnego domu w spokojnej dzielnicy Rzeszowa z szybkim dojazdem do centrum? W Słocinie powstaje osiedle domów w zabudowie szeregowej o powierzchni 114,3 m², sprzedawanych w standardzie deweloperskim. To doskonała propozycja dla rodziny – 5 pokoi, pełna infrastruktura w pobliżu i własny ogródek zapewniają komfort codziennego życia.
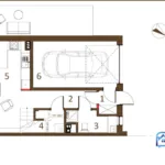
Parter tworzy praktyczna strefa dzienna: wiatrołap, komunikacja, łazienka, kotłownia oraz salon z jadalnią i aneksem kuchennym (ok. 23,95 m²) z wyjściem na taras. W bryle budynku znajduje się również garaż (ok. 17,19 m²). Na piętrze zaplanowano cztery ustawne sypialnie, garderobę i drugą łazienkę. Brak skosów na piętrze ułatwia aranżację mebli i zwiększa funkcjonalność pomieszczeń. W zależności od segmentu dostępne są ogródki o zróżnicowanej wielkości; w segmentach narożnych działki przekraczają 4,5 ara.
Standard wykończenia obejmuje m.in.: okna PCV 6‑komorowe, trzyszybowe, drzwi wejściowe antywłamaniowe z izolacją termiczną, bramę garażową segmentową, kompletną elewację (ocieplenie + tynk silikonowy z elementami dekoracyjnymi) oraz ogrzewanie podłogowe na całej powierzchni. Na terenie inwestycji wykonane zostaną podjazdy i tarasy z kostki, a ogrodzenia między ogródkami zapewnią prywatność. Media miejskie: prąd, woda, gaz, kanalizacja.
Lokalizacja w zielonej części Słociny łączy kameralny charakter osiedla z wygodnym dojazdem do centrum Rzeszowa i dostępem do szkół, sklepów oraz usług. To idealne miejsce dla rodzin z dziećmi i osób ceniących spokojne otoczenie.
Najważniejsze atuty: 5 pokoi, dwie łazienki, garaż w bryle, ogrzewanie podłogowe, brak skosów na piętrze, ogród, wysoka jakość wykonania. Zakończenie budowy planowane jest na III kwartał 2025 roku. Jeśli szukasz nowego domu w Rzeszowie, który połączysz z komfortem i oszczędnością – ta oferta spełni Twoje oczekiwania.
















