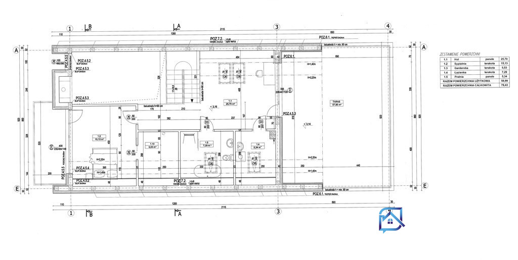
Na sprzedaż wyjątkowy dom typu stodoła o powierzchni 225 m² z poddaszem użytkowym, położony przy ulicy Granicznej w miejscowości Prądki, gmina Białe Błota. Nieruchomość usytuowana jest na działce o powierzchni 1117 m², co gwarantuje przestrzeń i prywatność. Dom w stanie surowym otwartym, wykonany z pustaka ceramicznego, z drewnianą więźbą dachową i dwuspadowym dachem pokrytym blachotrapezem z izolacją akustyczną. Nowoczesna bryła budynku nawiązuje do architektury typu stodoła, co wyróżnia go na tle innych ofert i czyni idealnym wyborem dla osób ceniących nowoczesność oraz indywidualny styl. Na parterze znajduje się przestronny salon z jadalnią (39,77 m²), kuchnia (16,26 m²), spiżarnia (1,65 m²), dodatkowy pokój (10,58 m²), łazienka (3,19 m²) oraz pomieszczenie gospodarcze. Układ pomieszczeń zaprojektowany został z myślą o funkcjonalności i komforcie codziennego użytkowania. Dom oferuje ogromny potencjał aranżacyjny – zarówno wewnątrz, jak i na zewnątrz. Działka stwarza warunki do zaaranżowania ogrodu, tarasu czy strefy relaksu. Dojazd do nieruchomości zapewnia spokojna, asfaltowa ulica, a okolica to zielone tereny i nowoczesna zabudowa jednorodzinna. Oferta skierowana jest zarówno do rodzin z dziećmi, jak i osób poszukujących przestrzeni do życia z dala od miejskiego zgiełku, a jednocześnie w dogodnej lokalizacji w pobliżu Bydgoszczy. Dom wybudowany w 2023 roku, co gwarantuje nowoczesne technologie i trwałość konstrukcji. Jeśli szukasz nowoczesnego domu z charakterem w spokojnej okolicy – ta oferta jest właśnie dla Ciebie. Zapraszamy do kontaktu i obejrzenia nieruchomości na żywo!

















